マンション

リビオ目黒リバーサウス14,980万円

◆リノベーション物件
◆ペット飼育可(規約あり)
◆11階角部屋通風・眺望良好
◆2駅徒歩圏内複数路線利用可
◆ウォークインクローゼットあり
◆シューズインクローゼットあり
リノベーション物件

リノベーション物件

ペット飼育可(規約あり)

ペット飼育可(規約あり)

  • 11階角部屋通風・眺望良好
  • ウォークイン・シューズインクローゼットあり

※画像はクリックすると拡大します。

リノベーション物件

リノベーション物件

ペット飼育可(規約あり)

ペット飼育可(規約あり)

11階角部屋通風・眺望良好

11階角部屋通風・眺望良好

ウォークイン・シューズインクローゼットあり

ウォークイン・シューズインクローゼットあり

リノベーション物件
ペット飼育可(規約あり)
11階角部屋通風・眺望良好
ウォークイン・シューズインクローゼットあり

物件概要

物件名称
リビオ目黒リバーサウス
販売価格
14,980万円  
毎月の返済額 万円台
返済シミュレーション
所在地
東京都品川区西五反田2丁目
交通
JR山手線「五反田」駅徒歩6分
東急目黒線「不動前」駅徒歩9分
JR山手線「目黒」駅徒歩14分
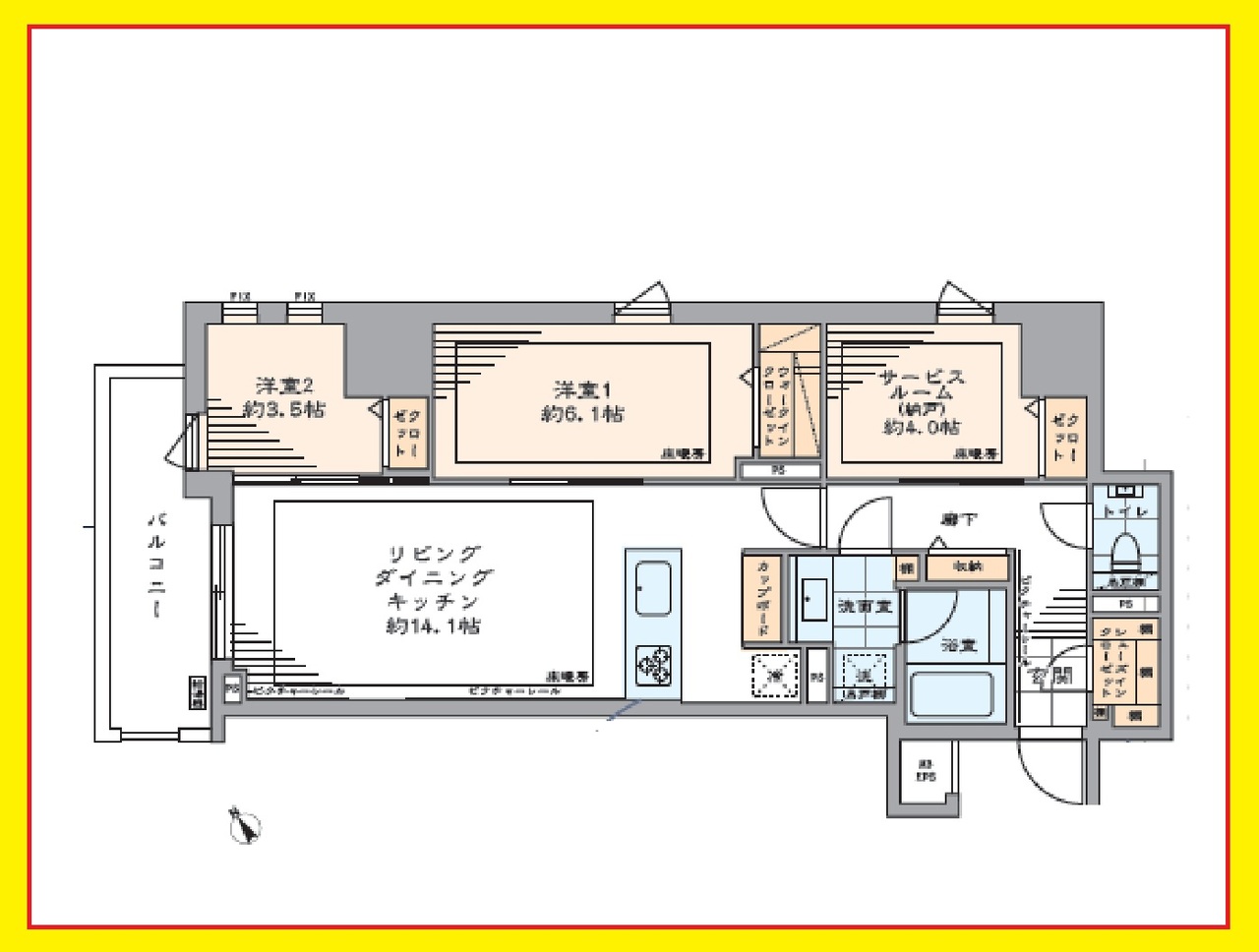
間取り
2SLDK
専有面積
65.58m²(登記)
バルコニー面積/向き
-
構造
RC
総戸数
-
土地権利関連
土地権利:所有権
築年月
2013年11月
管理形態
全部委託/通勤方式
所在階
11階/地上14階
駐車場
-
駐車場料金(月額)
-
管理費(月額)
13,370円
修繕積立金(月額)
22,290円
現況
空家
引渡し時期
相談
取引態様
仲介
物件番号
100138277992
情報更新日
2026-04-15
次回更新予定日
随時
設備
-
備考
◆リノベーション物件
◆ペット飼育可(規約あり)
◆11階角部屋通風・眺望良好
◆2駅徒歩圏内複数路線利用可
◆ウォークインクローゼットあり
◆シューズインクローゼットあり
取引条件有効期限:2026-05-31

こちらの物件のローンシミュレーション

物件価格
14,980万円
借入予定額
万円
頭金予定額
万円
ボーナス払い
返済年数
金利

金利を直接入力

%

※ 金利参考先:各都市銀行・地方銀行・ネット銀行・住宅金融支援機構 等

毎月のお支払い額
ボーナス月のお支払額
🏡住宅ローンの無料相談受付中!🏡
住宅ローンの無料相談

「物件がまだ決まっていないけれど、住宅ローンについて詳しく知りたい…」
そんな方も大歓迎です!

💡専門のファイナンシャルプランナー・住宅ローンアドバイザーがサポート!
  • 🔹あなたに最適な金融機関をご提案
  • 🔹銀行に直接申し込むよりも、住宅ローンの審査が通りやすく!
  • 🔹分かりやすいシミュレーションをFPが無料でコンサルティング!
  • 🔹事前審査(仮審査)から正式審査(本申込)までトータルサポート!
専門のファイナンシャルプランナー・住宅ローンアドバイザーがサポート

住宅購入を検討中の方も、ローンの基礎知識を知りたい方も、まずはお気軽にご相談ください

専門のファイナンシャルプランナー・住宅ローンアドバイザーがサポート
お電話でのお問い合わせはこちら

WALLMATE不動産 本店

東京メトロ銀座線「溜池山王」駅9番出口から徒歩1分

本店
メールでのお問い合わせはこちら

条件に近い物件

見学予約 資料請求
ページトップへ
無料会員登録で会員限定未公開物件が閲覧できます
2,027
6,318
閉じる