土地

品川区豊町49,800万円

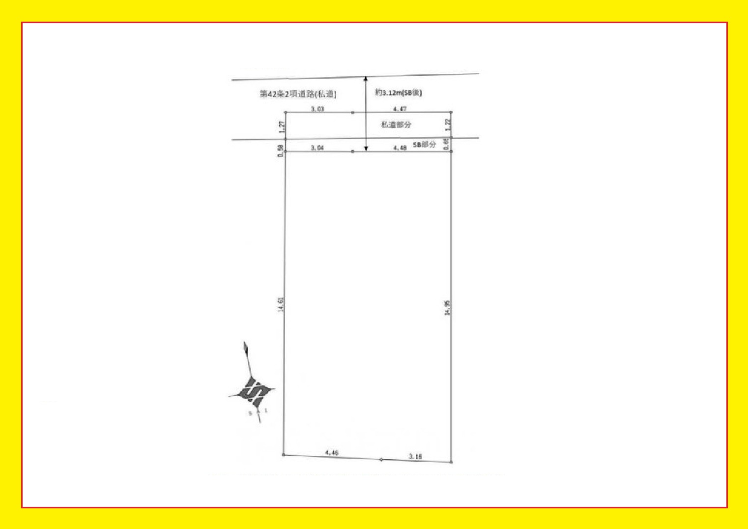
◆整形地
◆更地渡し
◆お好きなハウスメーカーで建築可
2駅3線が徒歩10分圏内

2駅3線が徒歩10分圏内

建築条件なし!

建築条件なし!

  • 【建物参考プラン】4LDK、 専有面積132.07㎡
  • 陽当り良好♪
  • 閑静な住宅街

※画像はクリックすると拡大します。

2駅3線が徒歩10分圏内

2駅3線が徒歩10分圏内

建築条件なし!

建築条件なし!

【建物参考プラン】4LDK、 専有面積132.07㎡

【建物参考プラン】4LDK、 専有面積132.07㎡

陽当り良好♪

陽当り良好♪

閑静な住宅街

閑静な住宅街

2駅3線が徒歩10分圏内
建築条件なし!
【建物参考プラン】4LDK、 専有面積132.07㎡
陽当り良好♪
閑静な住宅街

物件概要

物件名称
品川区豊町4
販売価格
9,800万円  
毎月の返済額 万円台
返済シミュレーション
所在地
東京都品川区豊町4丁目
交通
東急大井町線「戸越公園」駅徒歩6分
土地面積
112.03m²(実測)
建ぺい率/容積率
60%/167%
用途地域
第一種住居地域
主な使用用途
販売区画数
-
地勢
-
建築条件
建築条件無
地目
宅地
土地権利関連
土地権利:所有権
引渡し
相談
セットバック
不要
接道
一方 北西側幅2.8m
現況
古家有
都市計画
市街
私道面積
取引態様
仲介
物件番号
100137635786
情報更新日
2026-04-15
次回更新予定日
随時
設備
-
備考
◆整形地
◆更地渡し
◆お好きなハウスメーカーで建築可
取引条件有効期限:2026-05-31

こちらの物件のローンシミュレーション

物件価格
9,800万円
借入予定額
万円
頭金予定額
万円
ボーナス払い
返済年数
金利

金利を直接入力

%

※ 金利参考先:各都市銀行・地方銀行・ネット銀行・住宅金融支援機構 等

毎月のお支払い額
ボーナス月のお支払額
🏡住宅ローンの無料相談受付中!🏡
住宅ローンの無料相談

「物件がまだ決まっていないけれど、住宅ローンについて詳しく知りたい…」
そんな方も大歓迎です!

💡専門のファイナンシャルプランナー・住宅ローンアドバイザーがサポート!
  • 🔹あなたに最適な金融機関をご提案
  • 🔹銀行に直接申し込むよりも、住宅ローンの審査が通りやすく!
  • 🔹分かりやすいシミュレーションをFPが無料でコンサルティング!
  • 🔹事前審査(仮審査)から正式審査(本申込)までトータルサポート!
専門のファイナンシャルプランナー・住宅ローンアドバイザーがサポート

住宅購入を検討中の方も、ローンの基礎知識を知りたい方も、まずはお気軽にご相談ください

専門のファイナンシャルプランナー・住宅ローンアドバイザーがサポート
お電話でのお問い合わせはこちら

WALLMATE不動産 洗足池支店

東急池上線「長原」駅徒歩2分

洗足池支店
メールでのお問い合わせはこちら

条件に近い物件

見学予約 資料請求
ページトップへ
無料会員登録で会員限定未公開物件が閲覧できます
3,443
6,162
閉じる