マンション

ライオンズマンション野方4,290万円

◆リノベーション済物件
◆オートロック付き
◆全居室収納有り
◆対面式キッチン

リノベーション済物件

リノベーション済物件

  • オートロック付き
  • 全居室収納有り

※画像はクリックすると拡大します。

リノベーション済物件

リノベーション済物件

オートロック付き

オートロック付き

全居室収納有り

全居室収納有り

リノベーション済物件
オートロック付き
全居室収納有り

物件概要

物件名称
ライオンズマンション野方
販売価格
4,290万円  
毎月の返済額 万円台
返済シミュレーション
所在地
東京都練馬区豊玉南2丁目
交通
西武新宿線「野方」駅徒歩12分
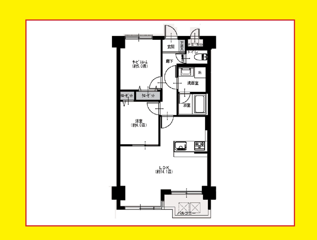
間取り
1SLDK
専有面積
52.27m²(登記)
バルコニー面積/向き
-
構造
RC
総戸数
-
土地権利関連
土地権利:所有権
築年月
1985年01月
管理形態
全部委託/通勤方式
所在階
4階/地上6階
駐車場
-
駐車場料金(月額)
-
管理費(月額)
13,590円
修繕積立金(月額)
20,700円
現況
空家
引渡し時期
相談
取引態様
仲介
物件番号
100138655482
情報更新日
2026-04-17
次回更新予定日
随時
設備
-
備考
◆リノベーション済物件
◆オートロック付き
◆全居室収納有り
◆対面式キッチン
取引条件有効期限:2026-05-31

こちらの物件のローンシミュレーション

物件価格
4,290万円
借入予定額
万円
頭金予定額
万円
ボーナス払い
返済年数
金利

金利を直接入力

%

※ 金利参考先:各都市銀行・地方銀行・ネット銀行・住宅金融支援機構 等

毎月のお支払い額
ボーナス月のお支払額
🏡住宅ローンの無料相談受付中!🏡
住宅ローンの無料相談

「物件がまだ決まっていないけれど、住宅ローンについて詳しく知りたい…」
そんな方も大歓迎です!

💡専門のファイナンシャルプランナー・住宅ローンアドバイザーがサポート!
  • 🔹あなたに最適な金融機関をご提案
  • 🔹銀行に直接申し込むよりも、住宅ローンの審査が通りやすく!
  • 🔹分かりやすいシミュレーションをFPが無料でコンサルティング!
  • 🔹事前審査(仮審査)から正式審査(本申込)までトータルサポート!
専門のファイナンシャルプランナー・住宅ローンアドバイザーがサポート

住宅購入を検討中の方も、ローンの基礎知識を知りたい方も、まずはお気軽にご相談ください

専門のファイナンシャルプランナー・住宅ローンアドバイザーがサポート
お電話でのお問い合わせはこちら

WALLMATE不動産 本店

東京メトロ銀座線「溜池山王」駅9番出口から徒歩1分

本店
メールでのお問い合わせはこちら

条件に近い物件

見学予約 資料請求
ページトップへ
無料会員登録で会員限定未公開物件が閲覧できます
3,326
6,015
閉じる