土地

杉並区久我山26,780万円

◆建築条件なし
◆更地
◆建物参考プラン有
◆駅徒歩6分の好立地
◆閑静な住宅街

建築条件なし!お好きなハウスメーカーで建築可。

建築条件なし!お好きなハウスメーカーで建築可。

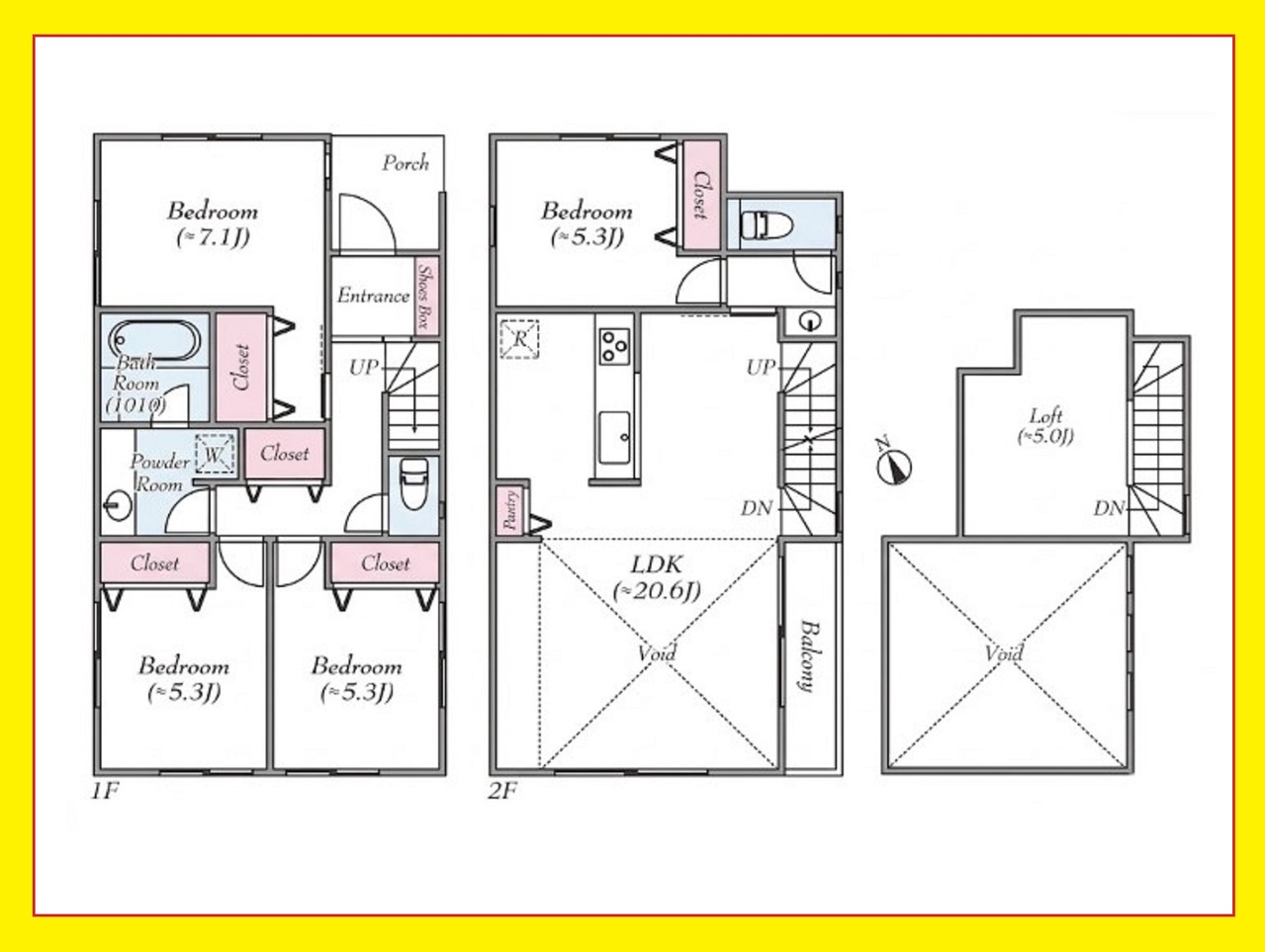
  • 【建物参考プラン】建物参考価格:2880万円/延床面積:101.02㎡

※画像はクリックすると拡大します。

建築条件なし!お好きなハウスメーカーで建築可。

建築条件なし!お好きなハウスメーカーで建築可。

【建物参考プラン】建物参考価格:2880万円/延床面積:101.02㎡

【建物参考プラン】建物参考価格:2880万円/延床面積:101.02㎡

建築条件なし!お好きなハウスメーカーで建築可。
【建物参考プラン】建物参考価格:2880万円/延床面積:101.02㎡

物件概要

物件名称
杉並区久我山2
販売価格
6,780万円  
毎月の返済額 万円台
返済シミュレーション
所在地
東京都杉並区久我山2丁目
交通
京王井の頭線「久我山」駅徒歩6分
土地面積
120m²(実測)
建ぺい率/容積率
50%/100%
用途地域
第一種低層住居専用地域
主な使用用途
販売区画数
-
地勢
-
建築条件
建築条件無
地目
宅地
土地権利関連
土地権利:所有権
引渡し
相談
セットバック
不要
接道
一方 北東側幅2.7m
現況
更地
都市計画
市街
私道面積
取引態様
仲介
物件番号
100138529240
情報更新日
2026-04-28
次回更新予定日
随時
設備
-
備考
◆建築条件なし
◆更地
◆建物参考プラン有
◆駅徒歩6分の好立地
◆閑静な住宅街
取引条件有効期限:2026-05-31

こちらの物件のローンシミュレーション

物件価格
6,780万円
借入予定額
万円
頭金予定額
万円
ボーナス払い
返済年数
金利

金利を直接入力

%

※ 金利参考先:各都市銀行・地方銀行・ネット銀行・住宅金融支援機構 等

毎月のお支払い額
ボーナス月のお支払額
🏡住宅ローンの無料相談受付中!🏡
住宅ローンの無料相談

「物件がまだ決まっていないけれど、住宅ローンについて詳しく知りたい…」
そんな方も大歓迎です!

💡専門のファイナンシャルプランナー・住宅ローンアドバイザーがサポート!
  • 🔹あなたに最適な金融機関をご提案
  • 🔹銀行に直接申し込むよりも、住宅ローンの審査が通りやすく!
  • 🔹分かりやすいシミュレーションをFPが無料でコンサルティング!
  • 🔹事前審査(仮審査)から正式審査(本申込)までトータルサポート!
専門のファイナンシャルプランナー・住宅ローンアドバイザーがサポート

住宅購入を検討中の方も、ローンの基礎知識を知りたい方も、まずはお気軽にご相談ください

専門のファイナンシャルプランナー・住宅ローンアドバイザーがサポート
お電話でのお問い合わせはこちら

WALLMATE不動産 本店

東京メトロ銀座線「溜池山王」駅9番出口から徒歩1分

本店
メールでのお問い合わせはこちら

条件に近い物件

見学予約 資料請求
ページトップへ
無料会員登録で会員限定未公開物件が閲覧できます
2,048
6,290
閉じる