新築一戸建て
NEW

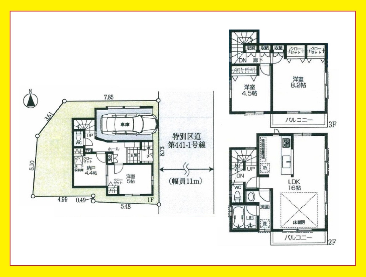
板橋区前野町56,780万円

◆3LDK+S+P
◆二面バルコニー
◆LD部分に床暖房有
◆全居室収納有
◆浴室乾燥機付
◆宅配ボックス有
◆お気軽にお問い合わせください♪

二面バルコニー有♪陽当たり良好です!

二面バルコニー有♪陽当たり良好です!

二面バルコニー有♪陽当たり良好です!

二面バルコニー有♪陽当たり良好です!

二面バルコニー有♪陽当たり良好です!

物件概要

物件名称
板橋区前野町5
販売価格
6,780万円  
毎月の返済額 万円台
返済シミュレーション
所在地
東京都板橋区前野町5丁目
交通
都営三田線「志村三丁目」駅徒歩13分
間取り
3SLDK
土地面積
81.32m²(実測)
建物面積
107.03m²(実測)
構造
木造
セットバック
不要
階建
地上3階
私道面積
築年月
2026年09月
引渡し
相談
建ぺい率/容積率
-/-
接道
一方 東側幅11m
土地権利関連
土地権利:所有権
地目
宅地
用途地域
第一種中高層住居専用地域
現況
建築中
取引態様
仲介
物件番号
100138840321
情報更新日
2026-04-30
次回更新予定日
随時
設備
-
備考
◆3LDK+S+P
◆二面バルコニー
◆LD部分に床暖房有
◆全居室収納有
◆浴室乾燥機付
◆宅配ボックス有
◆お気軽にお問い合わせください♪
建築確認番号:第25UDI1S建05991号
取引条件有効期限:2026-05-31

こちらの物件のローンシミュレーション

物件価格
6,780万円
借入予定額
万円
頭金予定額
万円
ボーナス払い
返済年数
金利

金利を直接入力

%

※ 金利参考先:各都市銀行・地方銀行・ネット銀行・住宅金融支援機構 等

毎月のお支払い額
ボーナス月のお支払額
🏡住宅ローンの無料相談受付中!🏡
住宅ローンの無料相談

「物件がまだ決まっていないけれど、住宅ローンについて詳しく知りたい…」
そんな方も大歓迎です!

💡専門のファイナンシャルプランナー・住宅ローンアドバイザーがサポート!
  • 🔹あなたに最適な金融機関をご提案
  • 🔹銀行に直接申し込むよりも、住宅ローンの審査が通りやすく!
  • 🔹分かりやすいシミュレーションをFPが無料でコンサルティング!
  • 🔹事前審査(仮審査)から正式審査(本申込)までトータルサポート!
専門のファイナンシャルプランナー・住宅ローンアドバイザーがサポート

住宅購入を検討中の方も、ローンの基礎知識を知りたい方も、まずはお気軽にご相談ください

専門のファイナンシャルプランナー・住宅ローンアドバイザーがサポート
お電話でのお問い合わせはこちら

WALLMATE不動産 本店

東京メトロ銀座線「溜池山王」駅9番出口から徒歩1分

本店
メールでのお問い合わせはこちら

条件に近い物件

見学予約 資料請求
ページトップへ
無料会員登録で会員限定未公開物件が閲覧できます
3,443
6,154
閉じる